ARCHITECTURAL Working DRAWING /Information Handout
Maybe your like
- Log In
- Sign Up
- more
- About
- Press
- Papers
- Terms
- Privacy
- Copyright
- We're Hiring!
- Help Center
- less
Outline
keyboard_arrow_downTitleAbstractFiguresDownload Free PDF
Download Free PDFARCHITECTURAL Working DRAWING /Information handout
Yoseph Fisehavisibility…
description18 pages
descriptionSee full PDFdownloadDownload PDF bookmarkSave to LibraryshareSharecloseSign up for access to the world's latest research
Sign up for freearrow_forwardcheckGet notified about relevant paperscheckSave papers to use in your researchcheckJoin the discussion with peerscheckTrack your impactAbstract
AI
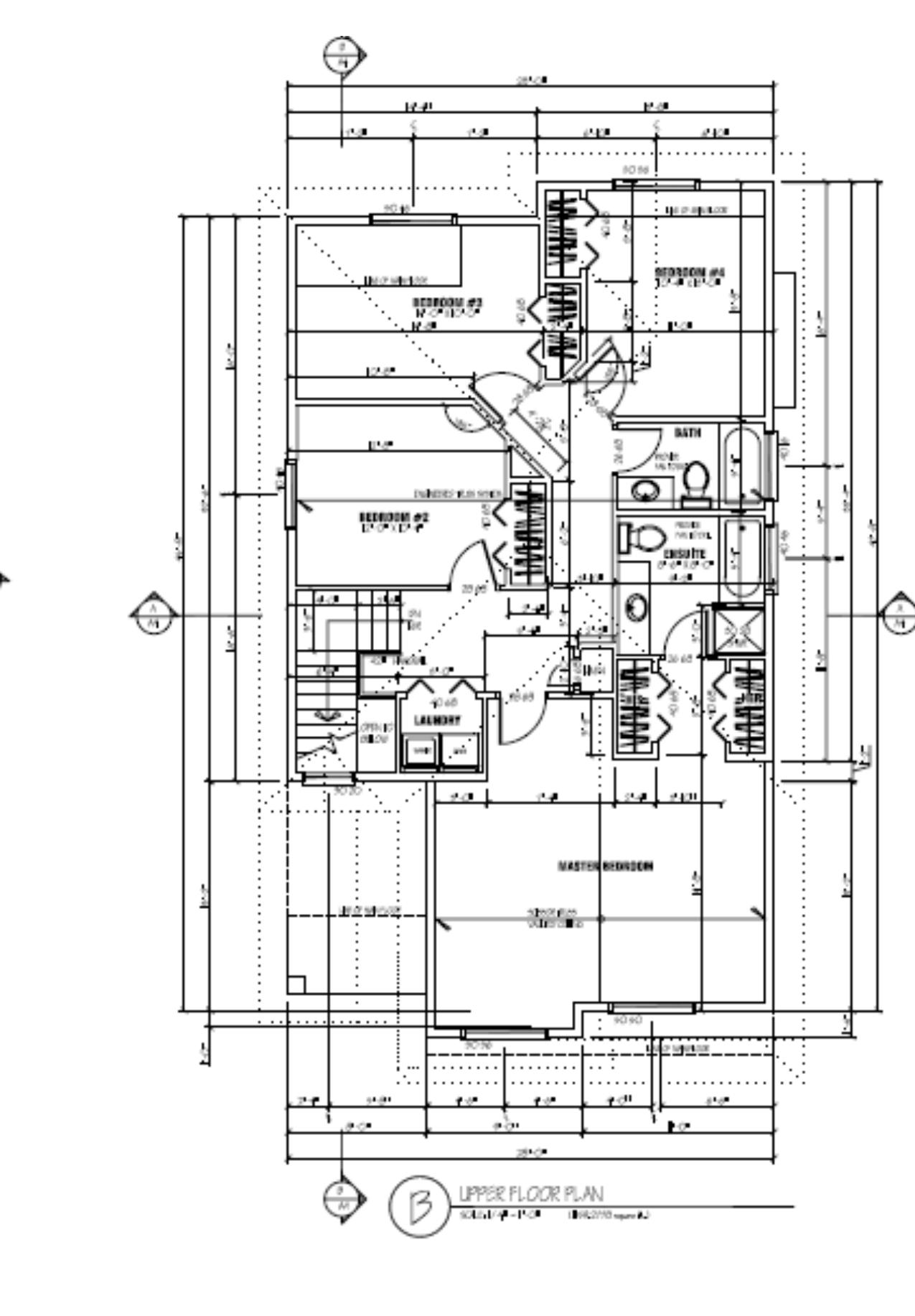
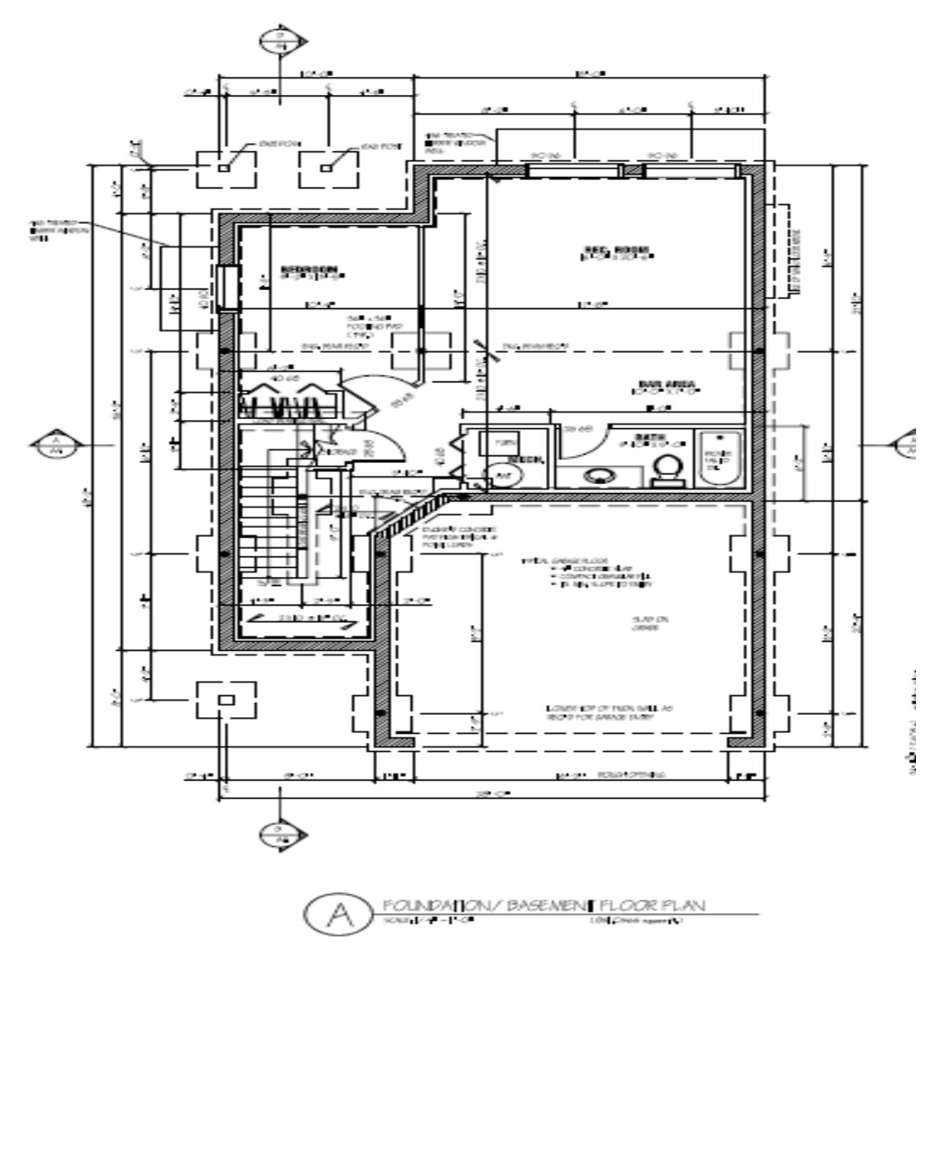
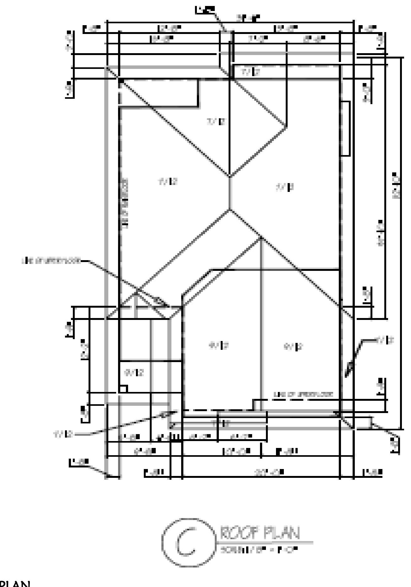
The document provides a comprehensive overview of architectural presentation and working drawings, highlighting their importance in communicating technical details to both clients and contractors. It outlines key components of working drawings, including elevations, dimensions, and structural features essential for the construction process, ensuring clarity and understanding among all stakeholders involved.
... Read moreFigures (6)arrow_back_ios






Loading Preview
Sorry, preview is currently unavailable. You can download the paper by clicking the button above.
Related papers
Interior design student handbookhrishikesh hkpName of the design firm doing the job. This should be in a larger, bolder text and include a logo if possible and address, telephone, web address, e-mail, etc. Name of the major design consultants. List civil, structural, mechanical, electrical engineers and other consultants. Include contact information. Space for professional stamp or seal. Depending upon the type and scope of the project, this may be required.
downloadDownload free PDFView PDFchevron_rightElectrical Design-lMd Suzanul Islam SuzanName of the design firm doing the job. This should be in a larger, bolder text and include a logo if possible and address, telephone, web address, e-mail, etc. Name of the major design consultants. List civil, structural, mechanical, electrical engineers and other consultants. Include contact information. Space for professional stamp or seal. Depending upon the type and scope of the project, this may be required.
downloadDownload free PDFView PDFchevron_rightINTERIOR ELEVATION DRAWINGSEric MallariName of the design firm doing the job. This should be in a larger, bolder text and include a logo if possible and address, telephone, web address, e-mail, etc. Name of the major design consultants. List civil, structural, mechanical, electrical engineers and other consultants. Include contact information. Space for professional stamp or seal. Depending upon the type and scope of the project, this may be required.
downloadDownload free PDFView PDFchevron_rightA CONCEPTUAL FRAMEWORK TOWARD A COMPUTER-BASED INFORMATION SYSTEM FOR CONSTRUCTION DOCUMENTS PREPARATION byAyhan KaradayidownloadDownload free PDFView PDFchevron_rightConstruction Drawing PracticesParthi BabuTo provide the students with knowledge of principles and techniques of manual construction drawing To enable them to appreciate the use engineering drawings as a communication medium in the construction industry.
downloadDownload free PDFView PDFchevron_right- Explore
- Papers
- Topics
- Features
- Mentions
- Analytics
- PDF Packages
- Advanced Search
- Search Alerts
- Journals
- Academia.edu Journals
- My submissions
- Reviewer Hub
- Why publish with us
- Testimonials
- Company
- About
- Careers
- Press
- Help Center
- Terms
- Privacy
- Copyright
- Content Policy
Tag » Architectural Section Drawing Details Pdf
-
[PDF] Architectural-Drawing-Part-1.pdf - HUD User
-
[PDF] ARCHITECTURAL FLOORS PLAN AND DETAIL DRAWINGS
-
[PDF] WORKING DRAWINGS HANDBOOK, Fourth Edition
-
[PDF] Architectural Working Drawings
-
[PDF] 21_02 SECTION DETAIL 2
-
[PDF] Details. Architecture Seen In Section - Iuav
-
[PDF] ARCHITECTURAL DRAWINGS
-
[PDF] The Professional Practice Of Architectural Working Drawings
-
Architectural Drawings
-
[PDF] Columbia University Architectural Design
-
[PDF] Construction Drawings And Details For Interiors: Basic Skills
-
Architectural Drawing.pdf - DocShare.tips
-
[PDF] How To Read Architectural Drawings - Amazon AWS