5 Gợi ý Mẫu Nhà Cấp 4 Gác Lửng 4 Phòng Ngủ đẹp Không Thể Bỏ Qua
Có thể bạn quan tâm
Những mẫu nhà cấp 4 gác lửng 4 phòng ngủ mang trong mình những ưu điểm với không gian sử dụng hợp lý, kiến trúc đa dạng cùng với chi phí đầu tư phải chăng đã được lòng rất nhiều chủ đầu tư. Để các bạn có thể chiêm ngưỡng cụ thể hơn về mẫu thiết kế nhà cấp 4 này, mời bạn đọc cùng theo dõi bài viết chi tiết dưới đây của WEDO nhé.
Mẫu nhà cấp 4 gác lửng 4 phòng ngủ có sân vườn rộng thoáng
Thiết kế mẫu nhà cấp 4 gác lửng 4 phòng ngủ mang phong cách hiện đại với nhiều những ưu điểm nổi bật riêng. Được xây dựng trên khu đất vuông vắn, ngôi nhà được thiết kế chính với mái thái bắt mắt. Ngoại thất đẹp và cách thiết kế hệ thống cửa sổ cũng như hệ thống cửa chính giúp không gian của căn nhà có được những sự thông thoáng và ánh sáng tối ưu nhất. Bên cạnh đó, ngôi nhà gây ấn tượng với khoảng sân trước thiết kế khá rộng và thoáng, được thiết kế lát gạch màu đỏ, kết hợp với hệ thống bồn hoa tiểu cảnh bố trí gọn gàng. Sự kết hợp cùng yếu tố sân vườn mang lại không gian sống xanh đầy cuốn hút cho tổng thể công trình.
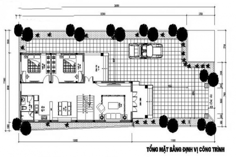
Không gian ngoại cảnh của mẫu nhà cấp 4 đẹp 4 phòng ngủ được nhìn từ trên cao xuống Nhìn vào bản vẽ nhà cấp 4, ta có thể nhìn thấy cách bài trí không gian vô cùng khoa học, giúp căn nhà đáp ứng được những nhu cầu sử dụng của các thành viên trong gia đình. Từ sảnh chính đi vào là không gian phòng khách với thiết kế hài hòa và có diện tích vừa phải. Đối diện là phòng ngủ với hướng cửa sổ thông thoáng nhất. Đi sâu vào bên trong căn nhà được ngăn cách không gian bởi hệ thống cầu thang lên gác lửng và sảnh phụ được thiết kế thêm để đảm bảo được sự thông thoáng cần thiết cho căn nhà. Thêm vào đó, là khu vực bếp được thiết kế rộng rãi và một phòng ngủ khác bên trong không quá rộng nhưng được thiết kế khép kín.
Mặt bằng tầng 1 Hướng cầu thang đi lên được chia không gian gác lửng làm hai phần. Một phần được thiết kế khu phòng ngủ và sân phơi. Một phần được thiết kế phòng thờ và một phòng ngủ khác. Khu vực nhà vệ sinh được đặt giữa 2 phòng ngủ để đảm bảo không gian của các căn phòng có được sự tối ưu nhất.
Mặt bằng tầng lửng Mẫu nhà cấp 4 gác lửng 4 phòng ngủ 1 phòng ngủ
Ngoại thất mẫu nhà cấp 4 gác lửng 4 phòng ngủ có thiết kế cân đối và hài hòa, có hệ mái Thái màu nâu lam giật cấp bắt mắt. Hệ mái Thái có kết cấu dốc vừa phải, giúp cho việc thoát nước mưa rất tốt vào mỗi khi trời mưa xuống, bảo vệ ngôi nhà, giúp nâng cao tuổi thọ và vẻ đẹp mỹ quan của mẫu nhà đẹp. Xung quanh khu vực chân tường được ốp đá màu vàng nhạt nhằm làm nổi bật hệ cho không gian ngoại thất của ngôi nhà. Hệ thống cột vuông to, vững chắc và được trang trí khá đơn giản nhẹ nhàng tạo nên sự tương phản về màu sắc vô cùng cuốn hút. Ngoài ra để tạo thêm sự bề thế, cửa chính được sử dụng bằng chất liệu pano gỗ kính với tông màu nâu trầm tô điểm thêm vẻ đẹp sinh động. Toàn bộ hệ thống cửa sổ, cửa phụ đều được sử dụng chất liệu kính khung xingfa màu đen mang lại một không gian nội thất vô cùng thông thoáng.
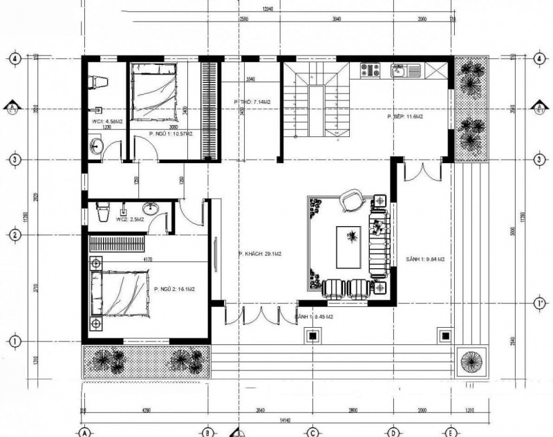
Tầng 1 của mẫu nhà cấp 4 có diện tích khá rộng rãi và được thiết kế gồm có 1 phòng thờ trang nghiêm ở sát khu vực cầu thang và 2 phòng ngủ với không gian vừa đủ được tích hợp thêm hệ thống cửa sổ thoáng mát. 1 phòng khách rộng rãi được bố trí nội thất rất hài hòa ngăn nắp. Bên trong là 1 phòng bếp + ăn thông thoáng, có cửa phụ để đi ra khu vực phía ngoài. 1 phòng vệ sinh chung ở giữa 2 phòng ngủ rất tiện nghi cho gia đình sử dụng.
Bước lên khu vực tầng lửng của gồm có 2 phòng ngủ được bố trí cạnh nhau với không gian rất yên tĩnh, rất thích hợp cho các thành viên trong gia đình chủ đầu tư nghỉ ngơi thư giãn sau một ngày làm việc mệt mỏi.
Mẫu nhà cấp 4 gác lửng 4 phòng ngủ chữ L
Mẫu nhà cấp 4 gác lửng 4 phòng ngủ sở hữu khoảng sân trước thiết kế khá rộng và thoáng. Sân trước được thiết kế lát gạch màu xám, cùng với hệ thống bồn hoa tiểu cảnh hai bên, đem đến không gian xanh khá cuốn hút cho công trình thiết kế. Phần sảnh chính thiết kế thoáng, với bậc tam cấp cao, được ốp đá tự nhiên màu nâu và màu vàng sáng, cùng với trụ cột vuông chống chịu lực cho kết cấu mái giật cấp phía trên. Hệ cửa chính sử dụng chất liệu gỗ tự nhiên, kết hợp cùng với mảng tường được ốp đá tự nhiên màu nâu xám tạo nên một hiệu ứng đa chiều và có sức hút lớn cho ngôi nhà.
Tại tầng 1, từ sảnh chính bước vào trong là phòng khách, thiết kế ngay cạnh cầu thang tầng lửng. Phía trong là phòng bếp và bàn ăn, nhà vệ sinh chung thiết kế ở trong cùng cuối góc nhà. Mẫu nhà cấp 4 có khối hình chữ L chia làm 2 phần, phía bên kia là không gian sinh hoạt riêng, bố trí 2 phòng ngủ liền kề với nhau.
Tầng 2 thiết kế 2 phòng ngủ, cạnh sảnh thang thông tầng lửng bố trí phòng sinh hoạt chung. Phòng thờ kết hợp cùng không gian sinh hoạt chung. Nhà vệ sinh bố trí góc trong cùng của tầng lửng.
Thiết kế nhà cấp 4 gác lửng 4 phòng ngủ kết hợp kinh doanh
Nằm tại khu phố sầm uất, tấp nập, mẫu nhà cấp 4 gác lửng 4 phòng ngủ dưới đây được thiết kế nổi bật. Không chỉ mang tới diện mạo thu hút, mà còn nhằm tạo điểm nhấn ấn tượng cho những người đi đường vì tầng 1 được dành cho khu kinh doanh. Với mặt tiền rộng và đơn giản, phần gác lửng được làm không quá cao nhưng vẫn đạt được sự thông thoáng nhờ ban công nhỏ thiết kế khoa học, giúp đón sáng và đón gió tự nhiên. Đặc biệt, gam màu trắng chủ đạo cùng mái thái đỏ cam càng khiến tổng thể ngôi nhà thêm phần rộng rãi, sáng sủa.
Mẫu nhà cấp 4 đẹp 4 phòng ngủ có thiết kế nổi bật Vì được thiết kế cho mục đích kính doanh, 1/3 diện tích tầng 1 được dành cho khu vực kinh doanh. Bên trong là không gian sinh hoạt chung của gia đình với phòng khách rộng. Sau là phòng bếp ăn được ngăn cách với phòng khách bằng vách tivi hiện đại. Cầu thang được thiết kế tiết kiệm diện tích vừa sang trọng làm nổi bật kiến trúc phòng khách. Phía bên kia cầu thang là 2 phòng ngủ và cuối cùng là nhà vệ sinh vừa kín đáo vừa lịch sự.
Mặt bằng tầng 1 Ở tầng lửng, bao gồm phòng thờ nằm phía trên phòng khách, vừa cao ráo vừa sang trọng. 2 phòng ngủ được thiết kế hợp lý và đều có ban công. Nhà vệ sinh được thiết kế ở cuối nhà ngay phía trên nhà vệ sinh tầng trệt.
Mặt bằng tầng lửng Thiết kế nhà cấp 4 gác lửng 4 phòng ngủ sang trọng thanh lịch
Mẫu nhà cấp 4 gác lửng 4 phòng ngủ có khối hình vuông vức cơ bản, thiết kế cột vuông nâng đỡ, kiên cố, vững chắc, tạo được dấu ấn cho người xem từ cái nhìn đầu tiên. Phần mái thái được thiết kế xếp lớp với màu sắc riêng biệt, kết hợp cùng các ô cửa tròn trang trí duyên dáng, mang đến vẻ đẹp sang trọng cho toàn bộ không gian. Đặc biệt, thiết kế cửa chính bằng kính khung nhôm hiện đại được tô điểm thêm phần mái vòm đậm chất châu âu cũng tôn lên nét kiều diễm của ngôi nhà. Bên ngoài với không gian xanh với thảm cỏ xanh mướt đưa lại sự bình yên tuyệt đối cho không gian ở của gia đình.
Bản vẽ mặt bằng nhà cấp 4 gác lửng được thiết kế tiết kiệm diện tích, nhưng vẫn đáp ứng đủ nhu cầu sinh hoạt cho gia đình. Ở tầng 1 được thiết kế phòng khách gọn gàng, kế đến là cầu thang lên tầng lửng, có phòng kho ở bên cạnh. Phòng bếp ăn thoáng và hợp lý có cửa hông đi ra sân bên hông. 2 phòng ngủ dành cho người lớn tuổi tiện sinh hoạt, 1 phòng có cửa hậu ra vườn sau.
Mặt bằng tầng 1 Tầng lửng 2 phòng ngủ phù hợp với gia đình có người già không tiện leo cầu thang. Tầng lửng còn có phòng thờ hướng ra ban công. Ngoài ra còn có khu vệ sinh ở cạnh cầu thang.
Mặt bằng tầng lửng Trên đây là một số mẫu nhà cấp 4 gác lửng 4 phòng ngủ được ưa chuộng hiện nay, với phong cách thiết kế đơn giản, chi phí xây dựng thấp, bố trí công năng sử dụng khoa học. Để sở hữu cho gia đình của mình một mẫu thiết kế nhà độc đáo như vậy, vui lòng hãy liên hệ với công ty chúng tôi qua số Hotline để nhận được sự tư vấn nhiệt tình và hoàn toàn miễn phí.
Từ khóa » Nhà Gác Lửng 4 Phòng Ngủ đẹp
-
Nhà Gác Lửng 4 Phòng Ngủ đẹp, Biệt Thự 1 Tầng Kiểu Pháp 2022
-
Mẫu Nhà Cấp 4 Có Gác Lửng 4 Phòng Ngủ Kinh Phí đầu Tư 600 Triệu
-
Gợi Ý Mẫu Nhà Cấp 4 Gác Lửng 4 Phòng Ngủ Đẹp Giá Rẻ - YouTube
-
Mẫu Nhà Cấp 4 Có Gác Lửng 4 Phòng Ngủ 130m2 Mái Thái
-
Phòng Khách Nhà Cấp 4 Có Gác Lửng đẹp - Pinterest
-
Nhà Cấp 4 Có Gác Lửng 4 Phòng Ngủ 9x9 ở Nghệ An M95
-
77+ Mẫu Nhà Gác Lửng Cấp 4 Đẹp, Hot Nhất 2022
-
100+ Mẫu Nhà Cấp 4 Có Gác Lửng đẹp Nhất, Hot Nhất 2022 | DURAflex
-
Nhà Cấp 4 Có Gác Lửng - Nhà đẹp Vinahouse
-
15 Mẫu Nhà Cấp 4 Gác Lửng đẹp Giá Rẻ Hiện đại Tiện Nghi
-
15 Mẫu Thiết Kế Nhà Cấp 4 Gác Lửng đẹp Mê Mẩn Chi Phí Cực Rẻ
-
Tổng Hợp Các Mẫu Nhà Gác Lửng 2 Phòng Ngủ đẹp, Tiện Nghi
-
Đặc điểm Nhà Gác Lửng 2 Phòng Ngủ Và Các Mẫu Nhà Gác Lửng Hiện ...