Khám Phá Ngôi Nhà Gỗ Thơm Nức Mùi Hoa Bưởi Của Cặp Vợ Chồng ...
Có thể bạn quan tâm
Mới nhất
Nằm gọn trong vườn bưởi và được bao bọc bởi dòng sông uốn lượn tuyệt đẹp, ngôi nhà gỗ nhỏ tên Hachi Lily này được xây dựng để đáp ứng ước mơ của chủ nhân.
Với ước mong " bỏ phố về quê ", ngôi nhà gỗ là nơi gia đình có thể tận hưởng sự riêng tư và bầu không khí trong lành bên trong một khu vườn đầy hoa bưởi. Đó cũng là cơ sở để gia đình trông coi công trình homestay cũng sẽ được xây dựng trong vườn bưởi này như một công việc kinh doanh của riêng mình.


Căn nhà gỗ nằm giữa không gian trong lành, bao quanh là một vườn bưởi thơm ngào ngạt.
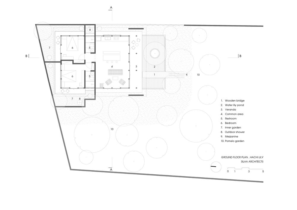
Căn nhà rộng 115m2, được thiết kế với bố cục gồm khu sinh hoạt chung, 2 phòng ngủ, 2 phòng vệ sinh và các không gian xung quanh.

Sơ đồ tầng trệt.

Khu sinh hoạt chung bao gồm khu sinh hoạt, ăn uống và bếp nhỏ kết nối với hàng hiên đi dọc mặt tiền chính, hướng ra ao hoa súng trước nhà.

Có một cây cầu gỗ nhỏ bắc qua ao là lối vào chính.


Hai phòng ngủ và phòng vệ sinh mang đến sự riêng tư và bầu không khí êm dịu bởi bức tường đá tự nhiên bao bọc xung quanh, tạo ra những khu vườn bên trong cho mỗi không gian.


Các vòi hoa sen ngoài trời là đặc điểm thú vị trong mỗi khu vườn bên trong.
Gác lửng bằng gỗ được chiếu sáng bởi giếng trời trên mái là thư viện và kho lưu trữ của gia đình. Còn gì tuyệt vời hơn khi đọc một cuốn sách gần cửa sổ nhỏ và thưởng thức vườn bưởi bên dưới.

Tất cả các không gian của ngôi nhà đều được bao phủ bởi một mái dốc lớn vừa đảm bảo che nắng vừa giúp thích nghi với khí hậu nhiệt đới của Huế - khu vực luôn có nhiều ánh nắng gay gắt vào mùa hè và mưa lớn kéo dài vào mùa đông.

Hầu hết đồ nội thất, khung chính và tường của ngôi nhà đều được làm bằng gỗ nghiến, thu thập từ cấu trúc của các tòa nhà cũ bị phá bỏ.

Các loại đá, gỗ, bê tông, thủy tinh, đất nung, cây xanh… tạo nên một bảng màu đẹp.

Gia đình quây quần trong khung cảnh nên thơ, mát lành bên cạnh ao súng.

Những đứa trẻ và bà của chúng có thể có một giấc ngủ ngon trong bầu không khí ấm cúng và êm dịu này.
Clip ngôi nhà gỗ thơm nức mùi hoa bưởi của cặp vợ chồng người Huế.
NHÀ GỖ - HUẾ, VIỆT NAM
Kiến trúc sư: SILAA
Diện tích: 115 m²
Năm: 2021
Ảnh: Hoàng Lê
Nhà sản xuất: Hafele, Toto, DDK
Kiến trúc sư trưởng: Nguyễn Hữu Sơn Dương
(Theo ArchDaily)
Cô gái trẻ lên núi xây nhà đẹp như chuyện cổ tích, tự tay nuôi gà nuôi vịt, may quần áo ôm giấc mơ "làm" Lọ LemTheo Hải Yến
Theo Nhịp Sống Kinh tế Copy link Link bài gốc Lấy link! http://nhipsongkinhte.toquoc.vn/kham-pha-ngoi-nha-go-thom-nuc-mui-hoa-buoi-cua-cap-vo-chong-nguoi-hue-820222461139623.htm Từ khóa: cặp vợ chồng , Bầu không khí , công việc kinh doanh , phòng vệ sinh , mưa lớn kéo dài Cùng chuyên mục Xem theo ngày Ngày 1 2 3 4 5 6 7 8 9 10 11 12 13 14 15 16 17 18 19 20 21 22 23 24 25 26 27 28 29 30 31 Tháng Tháng 1 Tháng 2 Tháng 3 Tháng 4 Tháng 5 Tháng 6 Tháng 7 Tháng 8 Tháng 9 Tháng 10 Tháng 11 Tháng 12 Năm 2026 2025 2024 2023 2022 XEM Cùng chuyên mục Xem theo ngày Ngày 1 2 3 4 5 6 7 8 9 10 11 12 13 14 15 16 17 18 19 20 21 22 23 24 25 26 27 28 29 30 31 Tháng Tháng 1 Tháng 2 Tháng 3 Tháng 4 Tháng 5 Tháng 6 Tháng 7 Tháng 8 Tháng 9 Tháng 10 Tháng 11 Tháng 12 Năm 2026 2025 2024 2023 2022 XEM- Vàng quốc tế "hạ nhiệt" sau đỉnh 5.000 USD, vàng trong nước lại tăng
- Giá vàng 1 tuần qua: Cú rơi chớp nhoáng và cơn sóng bắt đáy hướng đến mốc 5.000 USD
- Sáng 7/2: Giá vàng quay đầu về sát mốc 5.000 USD sau cú rơi sốc, Bitcoin hồi phục mạnh về ngưỡng 70.000 USD
"MC quốc dân" nợ 179 tỷ 6k lượt xem
Phim Việt thảm nhất Tết 2026 là đây: Doanh thu kém Thỏ Ơi!! cả vạn dặm, nhìn số tiền mà không tin nổi 6k lượt xem
Chưa đến Vía Thần Tài, vì sao hàng loạt công ty vàng bạc đã đua nhau khai trương từ mùng 4 Tết ? 6k lượt xem
Loạt ngân hàng đưa dự báo mới nhất về giá vàng 2026 6k lượt xem
Họp lớp Tết, người giàu nhất hứa mời ăn nhưng lúc thanh toán lại đi mất, chúng tôi trả thay 50 triệu đồng: Về nhà nhận tin nhắn “điếng người” 6k lượt xem
Một thương hiệu thời trang nổi tiếng bất ngờ thông báo "dừng lại" sau 12 năm, CEO tiết lộ: “Từng được phạt thuế” số tiền đủ mua 1 căn chung cư
0 Chính sáchTS. Lê Xuân Nghĩa: Siết quản lý thuế khiến nhiều hộ kinh doanh rút tiền tiết kiệm, buộc ngân hàng phải tăng lãi suất
0 Kinh doanh
Nóng: Cơ quan thuộc Bộ Tài chính hướng dẫn điều kiện mới khi trả lương từ 5 triệu đồng để được tính chi phí hợp lệ khi tính thuế thu nhập doanh nghiệp
SỨC BẬT TƯ NHÂN 0- Trang chủ
- Xã hội
- Kinh tế vĩ mô
- Kinh doanh
- Công nghệ
- Sống
Địa chỉ: Tầng 21, tòa nhà Center Building. Số 01, phố Nguyễn Huy Tưởng, phường Thanh Xuân, thành phố Hà Nội
Điện thoại: 024 7309 5555 - Máy lẻ 41294 | Fax: 024-39743413
Email: [email protected]
Chịu trách nhiệm nội dung: Bà Nguyễn Bích Minh
Chính sách bảo mật
Liên hệ quảng cáo
Hotline:
Email: [email protected]
Chat với tư vấn viên© Copyright 2012 - 2026 - Công ty Cổ phần VCCorp.
Giấy phép thiết lập trang thông tin điện tử tổng hợp trên internet số 3321/GP-TTĐT do Sở Thông tin và Truyền thông TP Hà Nội cấp ngày 03 tháng 07 năm 2019.
Từ khóa » Gỗ Phát Ra Mùi Thơm
-
Nhà Trọ
-
Cây Hương Thảo Có Tác Dụng Gì? Những Tác Hại Của Cây Hương Thảo ...
-
Loại Cây Cảnh Người Giàu Rất Thích Trồng Trước Nhà, Là Vị Thuốc Đông ...
-
Giữ Hương Hoàng đàn Cho Thế Hệ Mai Sau
-
Kẹp Thứ Này Lên điều Hoà, Nhà Thơm Phức Mà Muỗi Sẽ Không Còn ...
-
6 Loại Cây Cảnh Có Hoa Nhà Giàu Rất Thích Trồng, Thơm Hàng Chục Năm ...
-
Trầm Hương Kỳ Lân Luxury - Nâng Tầm Phong Thuỷ, Mang Lại Vượng ...
-
5 Cây Cảnh Phong Thủy, Nở Hoa Là Báo điềm Lành Sắp đến Nhà
-
Miss Dior Rose Essence: Hương Nước Hoa Hồng Xứ Grasse
-
Peranakan, ẩm Thực độc đáo Và Lâu đời Của Người Malaysia
-
Kẹp Vài Chiếc Kẹp Gỗ Lên điều Hòa, Mẹo Hay Mùa Hè Cho Mọi Gia đình
-
5 Cây Cảnh Này đột Nhiên Ra Hoa, Gia Chủ Nên Chuẩn Bị Sẵn "túi 3 ...
-
5 Mẹo Chẳng Tốn 1 Xu Nhưng Giúp Phòng Ngủ Lúc Nào Cũng Thơm Tho
-
Nước Hoa Niche Số Lượng Giới Hạn: Marketing Bằng Sự Im Lặng