Ngôi Nhà Với Nguồn Cảm Hứng Từ Tổ Chim
MỚI NHẤT!
Đọc nhanh >>- Tin tức Xã hội Doanh nghiệp Kinh tế vĩ mô Tài chính - Chứng khoán Chứng khoán Tài chính ngân hàng Tài chính quốc tế Bất động sản Tin tức Dự án Bản đồ dự án Khác Hàng hóa nguyên liệu Sống Lifestyle CHỦ ĐỀ NÓNG Magazine
- Dữ liệu
- Fchoice
15-07-2022 - 09:51 AM | Lifestyle
Chia sẻPhần không gian tầng trên lấy cảm hứng từ hình dạng tổ chim, các đường nét đan xen của hoạ tiết gỗ vừa giúp khu vực trở nên kín đáo vừa tạo nên các khe hở giúp đối lưu không khí. Công trình là sự phá cách trong thiết kế khi tạo nên cấu trúc hình học của toà nhà có sự lệch nhau, làm nên điểm nhấn cho không gian.
- 14-07-2022Chỉ có trong tay vỏn vẹn 2 USD, doanh nhân tỷ đô người Việt viết huyền thoại trong giới công nghệ cao, khiến người Mỹ phải nể phục
- 13-07-2022Sống trên thuyền, làm việc 10 giờ/tuần, người phụ nữ 33 tuổi kiếm được 1,7 tỷ đồng/năm nhờ nguồn thu nhập thụ động không ngờ tới
- 10-07-2022Chi 800 triệu đồng để cải tạo căn hộ diện tích 160m2: Đập thông 4 phòng nhỏ, tạo mảng gương khói trên trần nhà để nới rộng không gian

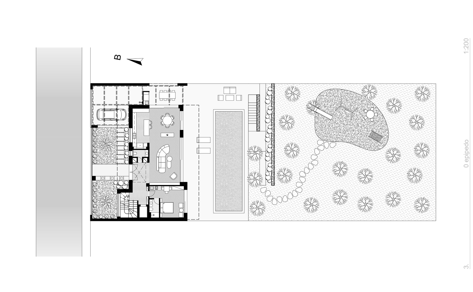
Ngôi nhà được xây dựng trên một khu đất bao quanh là rừng ô liu với diện tích sử dụng 400 m2 tại Hy Lạp.

Không gian sinh hoạt chung và khu vực vui chơi ngoài trời rộng rãi, hồ bơi được xây ngang theo chiều rộng của căn nhà hướng tầm nhìn về rừng cây xanh mát.

Một trong những điểm nhấn của công trình là khối nhà ở tầng trên. Phần không này lấy cảm hứng từ hình dạng tổ chim, các đường nét của hoạ tiết gỗ như các nhánh cây đan xen vào nhau, vừa giúp không gian nhà trở nên kín đáo vừa tạo nên các khe hở giúp đối lưu không khí.

Khu vực phòng khách bài trí nội thất hướng ra phần sân phía ngoài, không gian được gia chủ chú trọng vào yếu tố ánh sáng tự nhiên và hạn chế sử dụng các thiết bị điện tử.

Để tăng độ thông thoáng, kiến trúc sư dành một phần diện tích để làm khoảng thông tầng ngay tại khu vực phòng khách.

Ngăn cách khu vực phòng khách với nhà bếp là lò sưởi trung tâm. Thiết kế nội thất của căn bếp tối giản, các ngăn tủ lưu trữ toàn bộ dụng cụ bếp giúp căn phòng trở nên gọn gàng và tươm tất.

Không gian ăn uống được đặt đối diện khu vực đảo bếp, tận dụng nguồn sáng trực tiếp từ hai khung cửa kính bản lớn.

Phòng ngủ lớn trang bị hệ thống đèn chiếu sáng âm trần hiện đại, bên ngoài là sảnh ban cộng rộng hướng tầm nhìn ra cảnh quan thiên nhiên bao quanh.

Phòng sinh hoạt của trẻ nhỏ được nhóm kiến trúc sư sáng tạo thông qua yếu tố màu sắc rực rỡ, ánh sáng và không gian nhằm đảm bảo yếu tố an toàn và phát triển phù hợp với lứa tuổi.

Một tấm kính ngăn cách phòng tắm và khu vực vệ sinh cá nhân. Nguồn sáng chủ yếu cho căn phòng là dải đèn phía sau gương thay cho đèn trần nhà tạo nên điểm nhấn cho không gian.

Sơ đồ bản vẽ chi tiết căn nhà.
Lột xác từ tòa nhà được xây dựng từ năm 1970, quán cà phê ở Đà Nẵng được lên tạp chí kiến trúc của MỹTheo Nhật Quang
NDH
Theo NDH Copy link Link bài gốc Lấy link! https://ndh.vn/photo/kien-truc/ngoi-nha-voi-nguon-cam-hung-tu-to-chim-1319839.html Chia sẻ Từ Khóa: nguồn cảm hứng, không gian nhà, thiết bị điện tử, bài trí nội thấtCÙNG CHUYÊN MỤC
Xem theo ngày Ngày 1 2 3 4 5 6 7 8 9 10 11 12 13 14 15 16 17 18 19 20 21 22 23 24 25 26 27 28 29 30 31 Tháng Tháng 1 Tháng 2 Tháng 3 Tháng 4 Tháng 5 Tháng 6 Tháng 7 Tháng 8 Tháng 9 Tháng 10 Tháng 11 Tháng 12 Năm 2025 2024 2023 2022 2021 2020 2019 XEMTiên Nguyễn làm mất nhẫn kim cương khi được chồng gốc Dubai cầu hôn Nổi bật
Văn Hậu mời hội cầu thủ bạn thân đến biệt thự mấy chục tỷ mới tậu, mừng sinh nhật vợ đẹp Doãn Hải My Nổi bật
Không hề mê tín: Nhà có 4 đặc điểm này càng ở càng giàu, tha hồ hút lộc, vận may tới tấp
16:25 , 15/12/2025Nữ NSƯT nổi tiếng cả nước từ 1 vai diễn, U70 sống một mình tại TP.HCM, khẳng định “không biết buồn là gì”
16:03 , 15/12/2025Nữ NSND sở hữu nhiều biệt thự: "Tôi có khổ cũng không đau đớn như vậy"
15:35 , 15/12/2025Thú chơi Liễu Rồng: Khi những "cành củi khô" uốn lượn mang cả mùa xuân và tài lộc vào nhà
15:22 , 15/12/2025 Công ty Tin tức Lãnh đạo- XÃ HỘI
- CHỨNG KHOÁN
- BẤT ĐỘNG SẢN
- DOANH NGHIỆP
- NGÂN HÀNG
- TÀI CHÍNH QUỐC TẾ
- VĨ MÔ
- KINH TẾ SỐ
- THỊ TRƯỜNG
- SỐNG
- LIFESTYLE
- Dữ liệu
- Top 200
Địa chỉ: Tầng 21 Tòa nhà Center Building. Số 01, phố Nguyễn Huy Tưởng, phường Thanh Xuân, thành phố Hà Nội
Điện thoại: 024 7309 5555 Máy lẻ 292. Fax: 024-39744082
Email: [email protected] | Hotline: 0926 864 344
Chịu trách nhiệm nội dung: Ông Nguyễn Thế Tân
Liên hệ quảng cáo
Hotline:
Email: [email protected]
Chat với tư vấn viên
© Copyright 2007 - 2025 - Công ty Cổ phần VCCorp.
Giấy phép thiết lập trang thông tin điện tử tổng hợp trên mạng số 2216/GP-TTĐT do Sở Thông tin và Truyền thông Hà Nội cấp ngày 10 tháng 4 năm 2019.
Chính sách bảo mật Trở lên trênTừ khóa » Gỗ Tủ Phòng Ngủ
-
8 Mẫu Giường Ngủ Hot Nhất Năm 2022
-
Xuất Khẩu đồ Gỗ Lao đao Trước “bão” Lạm Phát Toàn Cầu
-
Bí Quyết Chọn Màu Sắc Phù Hợp Cho đồ Nội Thất Và Sàn Nhà Bằng Gỗ
-
Bất Ngờ Với 4 Cách Thiết Kế được ứng Dụng Hợp Lý Cho Căn Hộ 85m² ...
-
Nhà Phố Hà Nội Diện Tích Hẹp Nhưng Nội Thất Bố Trí Cực Kì Hợp Lý
-
Cô Gái độc Thân ở Hà Nội Chi 150 Triệu “lột Xác” Căn Hộ đẹp Như Mơ
-
Ý Tưởng Trang Trí Nội Thất Theo Phong Cách Tối Giản
-
Căn Hộ ốp Trần Bằng Gương
-
Khu Nhà Gỗ Dùng Nội Thất Tái Chế Của Cặp Vợ Chồng Trung Niên ở Hòa ...
-
Những Chiếc Giá Sách Tuyệt Vời Giúp Tận Dụng Tối đa Không Gian Nhà ...
-
Ngôi Nhà ở Hải Dương Hóa Không Gian Cổ Kính Như Các Lâu đài ...
-
Top 10 Cách Trang Trí Phòng Ngủ đẹp, Hiện đại Năm 2022 - CafeLand ...
-
Căn Hộ Chưa đầy 30m² Sở Hữu Thiết Kế Trong Veo Và ấm Cúng
-
Căn Biệt Thự Triệu đô Của Mai Thu Huyền Phim "Những Ngọn Nến ...