Thư Viện Quận Hà Đông
Có thể bạn quan tâm
Skip to content Thư viện Quận Hà Đông Trang chủ » Portfolio » Thư viện Quận Hà Đông Thư viện Quận Hà Đôngadmin2021-04-05T15:31:24+07:00
0911255138 Go to Top









Title
Page load linkTừ khóa » Thư Viện Khu Vực Hà đông
-
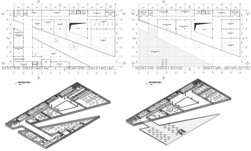
Thư Viện Quận Hà Đông
-
Cơ Sở 2: 2B Quang Trung, Quận Hà Đông, Hà Nội
-
Các Thư Viện Lớn Mà Những Gia đình Yêu Sách Hà Nội Cần Biết
-
Thư Viện Hà Nội - Trang Chủ | Facebook
-
Địa điểm Nhà Sách & Thư Viện Tại Quận Hà Đông, Hà Nội
-
Hà Đông Nâng Cao Hiệu Quả Hoạt động Thư Viện
-
Top 7 Thư Viện đẹp Nhất Tại Hà Nội
-
Địa điểm Nhà Sách & Thư Viện Tại Khu Vực Quang Trung Quận Hà ...
-
Thư Viện Quận Hà Đông, Phố Nhuệ Giang, Hanoi
-
Thư Viện Hà Nội: Một Số Thông Tin Bạn đọc Cần Nắm
-
4 Thư Viện Hà Nội Không Gian đọc Sách Miễn Phí
-
THƯ VIỆN QUỐC GIA VIỆT NAM
-
Khu Vực Tài Liệu Tiếng Việt- Tầng 1: 55 - Thư Viện Đại Học Hà Nội
-
Thư Viện Quận Hà Đông, Hà Nội City